我的畢業設計始於一段個人的成長歷程,也是一場關於回聲的追尋。
在資源不再匱乏的當代,我所關注的,不是援助的形式,而是那群來自瑞士的白冷會修士,曾經在這片土地上實踐的精神。他們帶來的不只是建築與信仰,更是一種協作與傳承的方式。這份精神,在我的成長中悄然發酵,成為一種看不見的養分。
《豐逅餘響》意指,在圓滿相遇之後,所留下的深遠回聲。這次的設計,便是一份延續這段相遇的回禮——獻給白冷會及父親的第一份禮物,也分享給看到這個設計的大家。
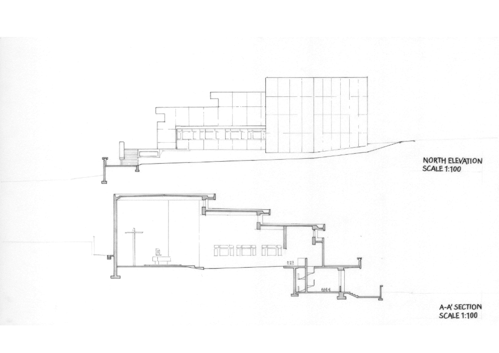
我選擇以教堂的姿態,回應這份歷史。這不是一座重複過往形式的教堂,而是一次重新理解教堂「神聖性」的新詮釋。在信仰日常化的當代,我嘗試以空間的彈性、集體的參與,回應節日與日常之間的張力。舊堂成為展示與集會的場所,新堂則如同草地與帳篷般開放——原初在聖經中在樹下集會的身影於其中重現。
這不僅是建築之間的對話,更是我與父親和那些修士們,在時間長河中一次深層的感知重逢。於是我的設計成為我個人記憶與集體歷史和土地之間的回響。
我相信,這份設計能與他們吹響的號角共振,在無聲處延續那場跨越時空的迴響。
–
Echoes After Fulfillment
My graduation project began with a personal journey—a quiet search for echoes from the past.
In today’s world, where material needs are no longer scarce, I turned my focus not to aid, but to the spirit once embodied by the Swiss Bethlehemite missionaries in Taiwan. Their legacy was more than faith or architecture; it was a way of living—through collaboration and quiet resilience. This spirit became an invisible nourishment in my own upbringing.
“Echoes After Fulfillment” refers to the deep reverberations left behind after a meaningful encounter. This design is my response to that encounter—a gift to the Bethlehemites, to my father, and to all who see it.
I chose the form of a church—not to replicate tradition, but to reinterpret sacredness today. In a time when faith becomes part of the everyday, I use flexible space and collective rituals to bridge the sacred and the ordinary. The old church becomes a place for gathering and memory; the new, an open field—like tents beneath trees, echoing early biblical assemblies.
This project is a reunion across time—a dialogue between buildings, between myself, my father, and the missionaries. It is my echo in the shared memory of land and history.